hero-image-0

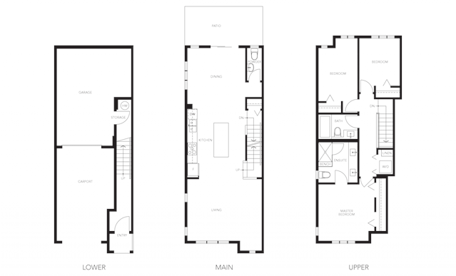
F3 Plan

By

Polygon Homes

   |   

Provenance

Provenance
Sold
Sold
3
2
1
From 1,385
unit-banner-imageunit-banner-imageunit-banner-image
F3 Plan details
F3 Plan is now sold.
Check out available nearby plans below.