


























































































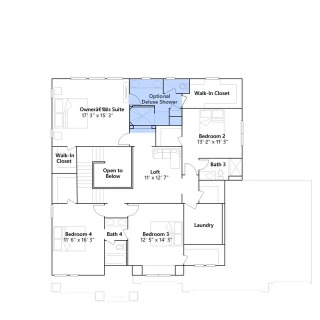
This new two-story home is a family-friendly haven. The first floor features an open layout situated among the formal dining room, casual breakfast room, kitchen and inviting Great Room to deliver seamless modern living. In a quiet corner is an office for at-home work. Upstairs is a loft surrounded by all four bedrooms, each boasting direct access to a full-sized bathroom including the luxurious owners suite.
Stay informed with Livabl updates on new community details and available inventory.