













































































































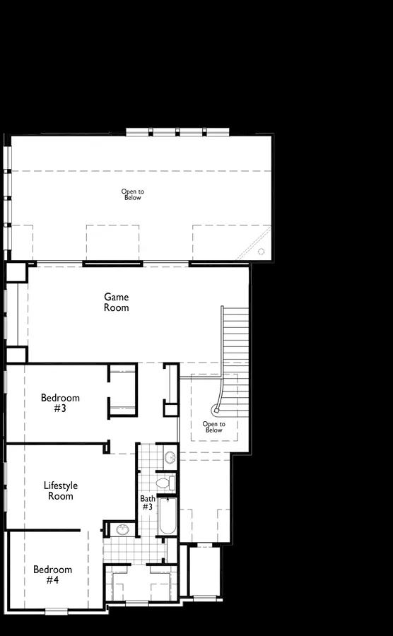
Welcome to the 224 plan. This two-story floor plan combines functionality with style, featuring four bedrooms and three full bathrooms. The first floor is perfect for entertaining and daily living, with an entertainment room and two dining areasone formal and one for everyday use. The modern kitchen seamlessly connects to the family room, creating a welcoming space for gatherings. The private primary suite offers a serene retreat with an ensuite bathroom. A study at the back of the home provides a quiet space for work or relaxation, and a three-car tandem garage offers ample storage and parking. Upstairs, you'll find a spacious game room, a versatile lifestyle room, and two additional bedrooms with access to a full bathroom, making this home ideal for modern living.
Stay informed with Livabl updates on new community details and available inventory.