



















Get additional information including price lists and floor plans.
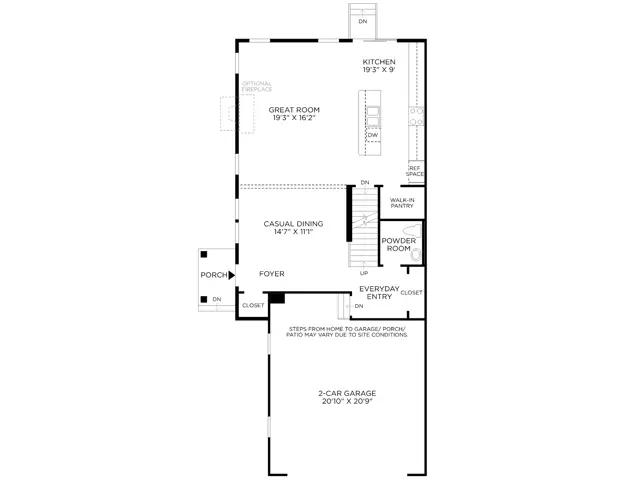
The Calder s inviting floor plan is ideal for modern living. The welcoming foyer reveals a casual dining area and a spacious great room. Adjacent, the well-appointed kitchen offers desirable rear yard access, an oversized center island with breakfast bar, plenty of counter and cabinet space, and an ample walk-in pantry. Complementing the gorgeous primary bedroom suite is a soaring cathedral ceiling, dual walk-in closets, and a marvelous primary bath with a dual-sink vanity, a luxe shower with seat, and linen storage. Secondary bedrooms feature cathedral ceilings and sizable closets, and share a hall bath with a a dual-sink vanity. Additional highlights include a generous loft, easily accessible second-floor laundry, a powder room, an everyday entry, and plenty of extra storage.
Stay informed with Livabl updates on new community details and available inventory.