

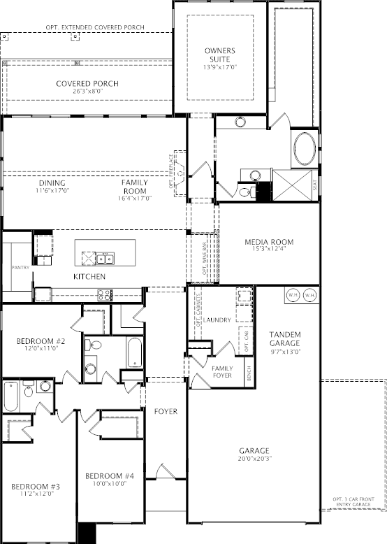
The Brynlee II offers a spacious design perfect for modern living. The open kitchen, family and dining rooms are bright and welcoming with a vaulted ceiling and a wall of windows overlooking the covered porch. The outdoor living space can be expanded to include a fireplace. The owner's suite and two secondary bedrooms provide relaxing retreats for the whole family. A media room and study complete the standard plan or add a second level with gameroom and optional bedroom and media room.