






























































































Get additional information including price lists and floor plans.
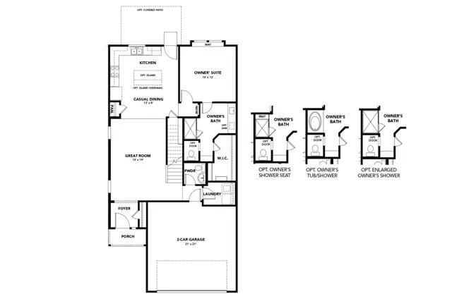
Blending modern comfort with timeless design, The Latitude offers a thoughtfully crafted layout perfect for families seeking flexibility, functionality, and style. Main Level: The open-concept great room, casual dining area, and kitchen with a spacious island create a seamless flow ideal for entertaining or everyday living. A convenient walk-in pantry and powder bath add practicality, while the main-floor primary suite provides a private retreat complete with a luxurious bathroom and generous walk-in closet. Optional bath configurations include an enlarged shower, tub/shower combo, or shower seat for a personalized spa experience. The laundry room and 2-car garage add convenience to everyday routines. Second Level: Upstairs, a bright and airy loft offers flexible living space perfect for a playroom, media area, or study. Two spacious bedrooms share a full bathroo...
Stay informed with Livabl updates on new community details and available inventory.