
























Get additional information including price lists and floor plans.
Images coming soon
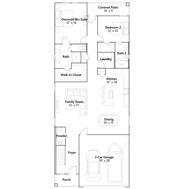
This new two-story home boasts a spacious design made for modern lifestyles. On the first floor, an open-concept floorplan combines the kitchen, dining area and family room for seamless entertaining and multitasking, and the luxe owners suite and a secondary bedroom are tucked away at the back of the home. Two additional secondary bedrooms are located on the second floor, along with a versatile flex space and game room.
Stay informed with Livabl updates on new community details and available inventory.