hero-image-0
hero-image-1
hero-image-2
hero-image-3
hero-image-4
hero-image-5

40506 Tyto Lane

By

Century Communities

   |   

Audubon

Audubon
For sale
For sale
$326,900
2
4
2
1
2,064
40506 Tyto Lane details

Contact sales center

Get additional information including price lists and floor plans.

Floor plan

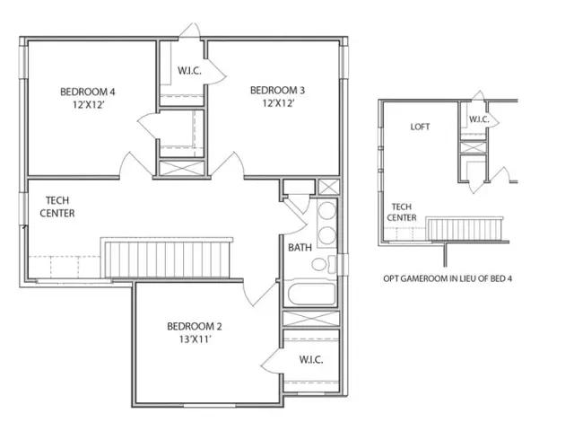
2025_05_30_05_43_02_2025_05_30_01_43_01_959_first-floor120-resized-addington-2064.webp
2025_05_30_05_43_03_2025_05_30_01_43_02_006_second-floor114-resized-addington-2064.webp
For sale

Addington

Audubon

The Addington floor plan is designed with modern living in mind, prioritizing both functionality and a sense of openness. The combination of the large kitchen island and the great room would likely create a great flow for socializing and interaction, making it perfect for gatherings. Plus, the primary suite being on the first floor offers that added layer of privacy and convenience, while the secondary bedrooms upstairs give a nice separation for guests.

Interested? Receive updates

Stay informed with Livabl updates on new community details and available inventory.