
















Images coming soon
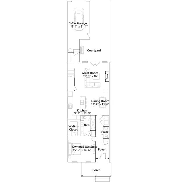
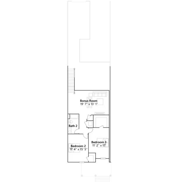
A spacious open floorplan allows for effortless flow between the Great Room, kitchen and dining room on the first level of this two-story home, while double doors open to a courtyard for seamless indoor-outdoor living and entertaining. The luxe owners suite is found just off the entry, complete with an en-suite bathroom and a walk-in closet. The second floor is host to a versatile bonus room and two secondary bedrooms.
Stay informed with Livabl updates on new community details and available inventory.