




















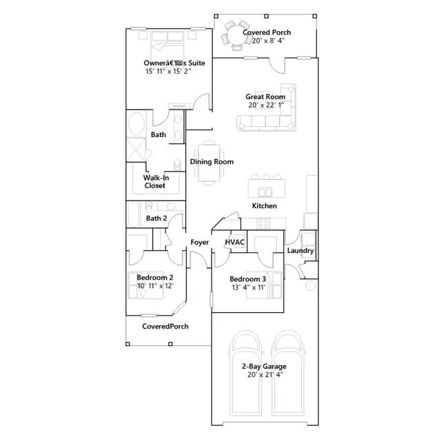
This single-story residence delivers modern convenience with ample room to grow. At the center is a seamless open layout featuring a well-equipped kitchen, dining room and spacious Great Room with a fireplace and porch access, perfect for family living and entertaining. Framing the foyer are two comfortable bedrooms, each with a sizable closet. In a privately situated corner is the lavish owners suite with a spa-style bathroom and abundant wardrobe room. A versatile two-bay garage completes the home.
Stay informed with Livabl updates on new community details and available inventory.