Emerson
Emery at Riverstone
Madera Southeast
Lydian
Ariette at Riverstone
Ophelia
Encore at Riverstone
Cody
Riverstone - Frontier Series at Club District
Madera County
Canto
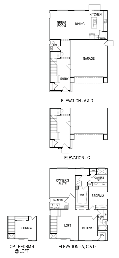
Residence 160
De Young Sereno at Tesoro Viejo
Madera
Quill
Residence 140
Stay informed with Livabl updates on new community details and available inventory.