















































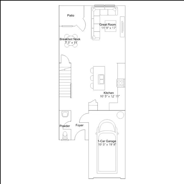
This two-story townhome has a smart layout that delivers the promise of low-maintenance living. An open-plan design connects the first-floor kitchen, breakfast room and Great Room, which features a door providing direct access to the patio. Perfectly situated upstairs are two secondary bedrooms, while down the hallways is the tranquil owners suite with a private full-sized bathroom.