





































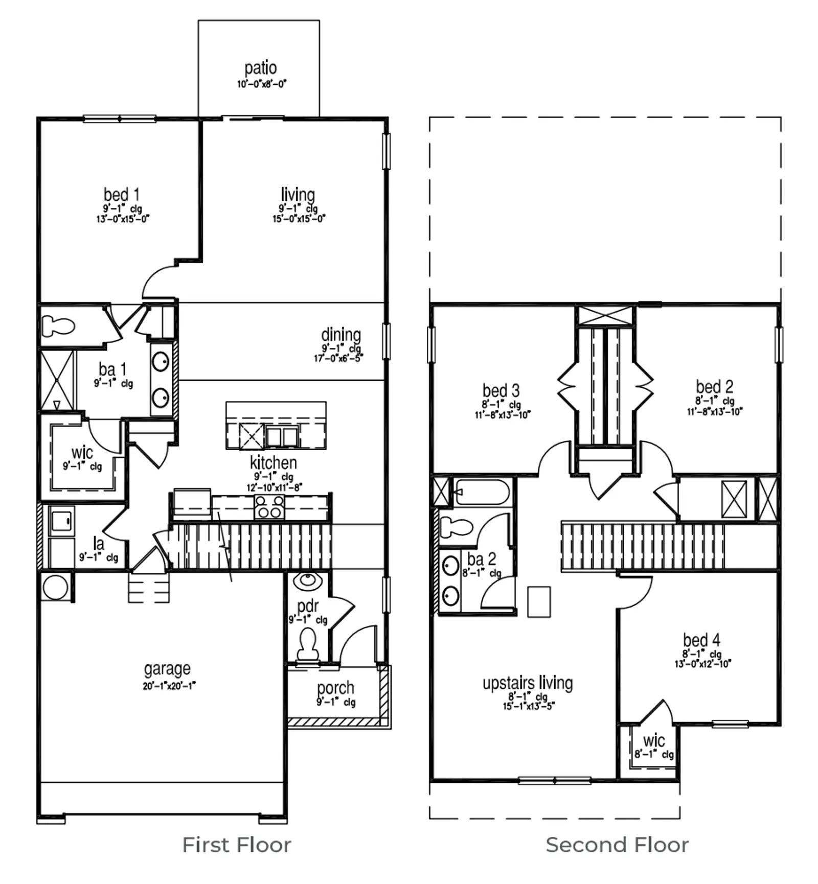
Welcome to Gates Village! Nestled in the heart of Lugoff, SC, Gates Village offers a charming and inviting community featuring modern 1- and 2- story single family homes. These thoughtfully crafted homes start in the mid $200s and feature spacious floorplans, with 3-5-bedroom options, designed for families of all sizes. Enjoy the peaceful surroundings of this vibrant community, conveniently located near local schools, shopping, dining, and outdoor recreation. It is also minutes away from Historic Downtown Camden, an area rich in art and history. Whether youre starting fresh, growing your family, or settling down, Gates Village provides the perfect blend of comfort, convenience, and Southern Charm. Gates Village is also just a short drive to Fort Jackson/Shaw AFB and Downtown Columbia, making it perfect for military families and professionals alike. Schedule a ...
Stay informed with Livabl updates on new community details and available inventory.