





















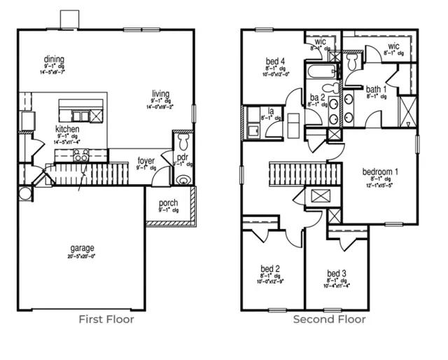
The Aisle in Gates Village is a two-story floorplan with open-concept design and highly functional spaces. The open first floor showcases a spacious kitchen with modern granite countertops, plenty of cabinet space, and a large floating kitchen island. This home offers 4 bedrooms, all located upstairs, and 2.5 bathrooms, including a convenient powder room on the first floor. The spacious primary suite upstairs includes a walk-in closet and large primary bathroom with double sinks and a standup shower. Perfect for modern living, the Aisle delivers both style and practicality in one thoughtfully designed package. All of our homes include D.R. Horton's Home is Connected package, an industry leading suite of smart home products that keeps homeowners connected with the people and place they value the most. The technology allows homeowners to monitor and control t...
Stay informed with Livabl updates on new community details and available inventory.