


















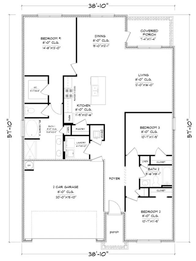
The Aria is a single-story floorplan at our Kensleigh Cove community in Lucedale, Mississippi. Inside this 3-bedroom, 2-bathroom home, youll find over 1,600 square feet of comfortable living. The Aria optimizes living space with an open concept kitchen overlooking the living area, dining room, and covered porch. Entertaining is a breeze, as this popular home features a living and dining in the heart of the home, with covered porch just steps away in your backyard. The spacious kitchen features stainless steel appliances, a convenient island with granite countertops and a walk-in pantry with ample storage. The primary bedroom located in the rear of the home has its own attached bathroom that features a walk-in closet and all the space you need to get ready in the morning. Sharing a sink isnt a worry with the double vanity. In every bedroom youll have carp...