





































































Get additional information including price lists and floor plans.
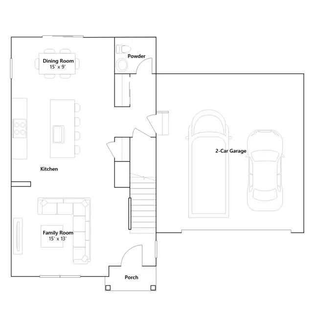
This two-story home has a smart layout that offers space and convenience. The first floor is occupied by the main living area, which includes an open family room, a well-equipped kitchen and a cozy dining room. Upstairs are all three bedrooms, including the owners suite which comes equipped with a full bathroom and walk-in closet. A two-car garage for versatile storage space completes the home.
Stay informed with Livabl updates on new community details and available inventory.