







































































Get additional information including price lists and floor plans.
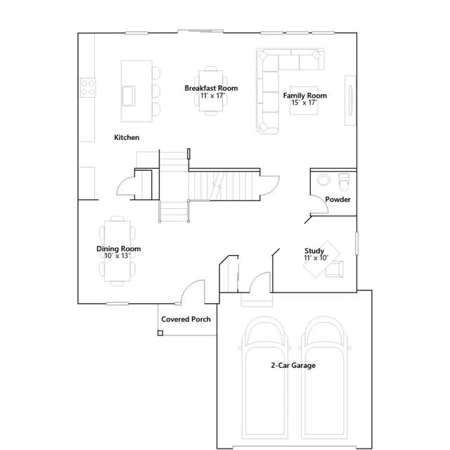
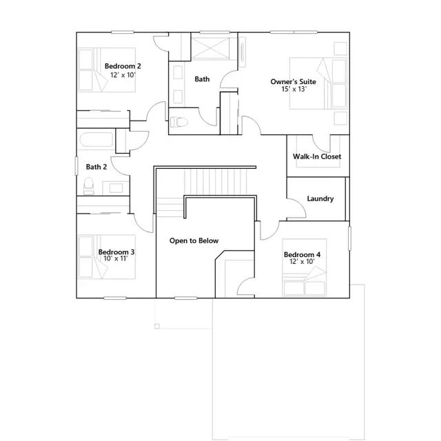
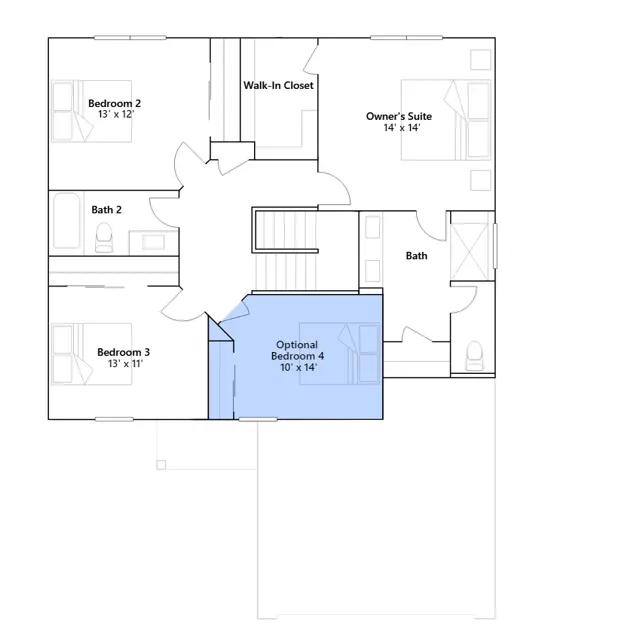
This new two-story home is optimized for gracious living. The first floor features a formal dining room, a casual family room, a modern kitchen with an oversized center island, a lovely breakfast room and a private study. Through sliding glass doors is the backyard for outdoor moments. Upstairs are three secondary bedrooms and a tranquil owners suite with two closets. Completing the home is a desirable two-car garage.
Stay informed with Livabl updates on new community details and available inventory.