






































































Get additional information including price lists and floor plans.
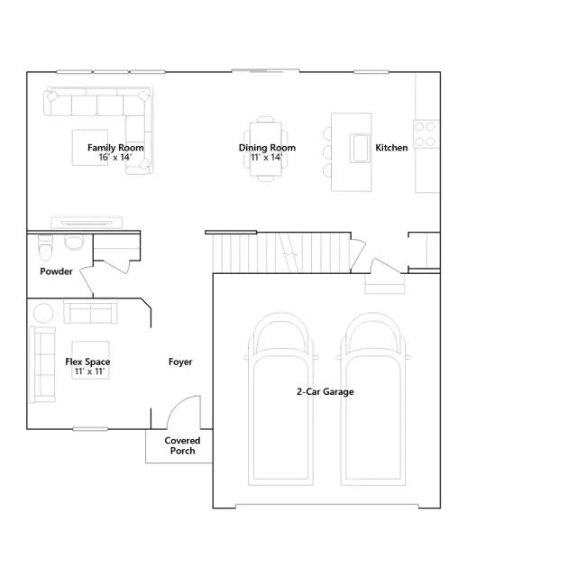
This two-story home combines modern comfort with convenience. Found off the foyer is a flex room for versatile needs, followed by a cohesive open main living area with direct access to the backyard for indoor-outdoor activities. In a private corner of the first floor is a study ideal for at-home work. Upstairs are three secondary bedrooms and the spacious owners suite with a full-sized bathroom. A two-car garage completes the home.
Stay informed with Livabl updates on new community details and available inventory.