





































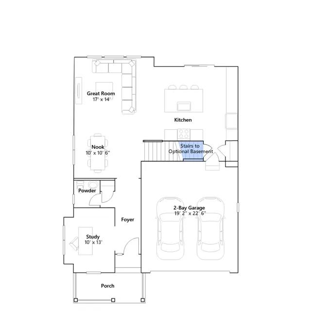
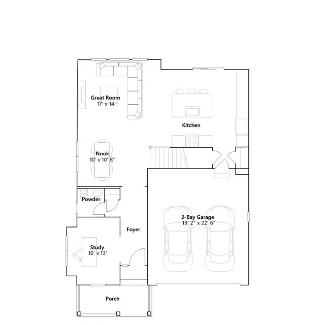
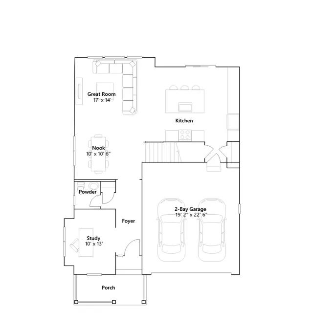
The first level of this two-story home features a spacious open floorplan shared between the kitchen, dining nook and Great Room, with sliding glass doors that open up to the outdoor space. A versatile study is situated off the entry, great as a home office. All four bedrooms occupy the second floor, including the luxe owners suite which is complemented by an en-suite bathroom and walk-in closet.
Stay informed with Livabl updates on new community details and available inventory.