




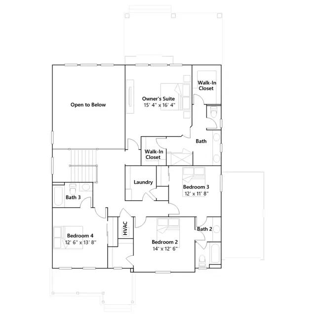
A spacious open-concept floorplan can be found on the first level of this two-story home, host to the Great Room, kitchen and dining nook, with a covered deck offering enhanced outdoor living. A bedroom near a full bathroom is located off the entry. Four additional bedrooms can be found upstairs, including the luxe owners suite tucked into a private corner at the back of the home for optimal comfort.
Stay informed with Livabl updates on new community details and available inventory.