








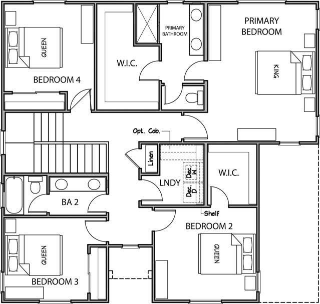
The Pacifica is our new two-story floorplan in Los Banos and is perfect for large or multi-generational families! This spacious house has 5 bedrooms and 3 bathrooms. The first story features a gourmet kitchen overlooking the great room and a bedroom or office with a full bathroom. The open kitchen features 7 color options, for granite slab or quartz kitchen countertops, 10 custom stain options of shaker style cabinets, stainless steel appliances, stunning tile flooring in 8 color options- all standard features at Westbrook by Anderson Homes. The second story is completed with a laundry room and four additional bedrooms. The private primary suite features a large walk-in closet, dual vanity, piedrafina marble countertops, and designer vanity lights. Guest bathrooms also include piedrafina marble for all vanities. Kohler chrome faucets and plumbing fixtures add sty...
Stay informed with Livabl updates on new community details and available inventory.