







































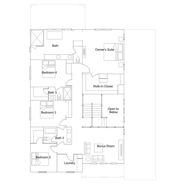
This new, two-story Next Gen home offers a first-floor private suite with a separate entrance, living room, kitchenette, bedroom and bathroom that enables relatives to live independently. In the main home is a flex space off the foyer, while at the back is an open-concept main living area that leads out to a large California Room. The second floor is occupied by a multipurpose bonus room and all four bedrooms, including the sprawling owners suite with a spa-style bathroom and luxe freestanding tub.
Stay informed with Livabl updates on new community details and available inventory.