

















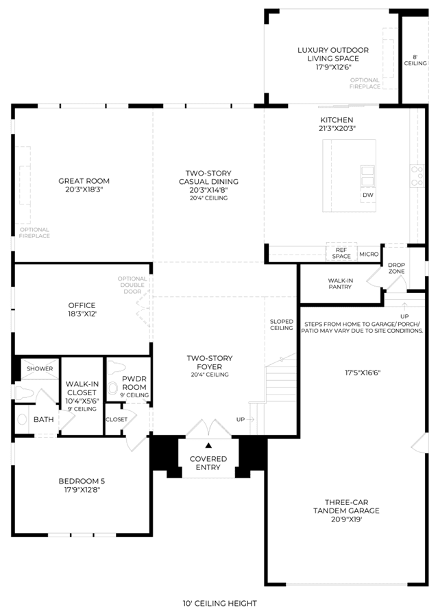
Luxe design. The Harbor's inviting covered entry reveals the stunning two-story foyer, opening to the soaring great room, two-story casual dining area, and views of the desirable luxury outdoor living space beyond. The well-equipped gourmet kitchen is highlighted by a large center island with breakfast bar, plenty of counter and cabinet space, and gigantic walk-in pantry. The serene primary bedroom suite is enhanced by a palatial walk-in closet and deluxe primary bath with dual-sink vanity, large soaking tub, luxe shower, linen storage, and private water closet. Secondary bedrooms overlook an enormous loft, and feature generous closets and private baths. Additional highlights include a desirable first floor bedroom suite with walk-in closet and private bath, versatile office off the foyer, convenient powder room and drop zone, centrally located laundry, and a...