






































































Get additional information including price lists and floor plans.
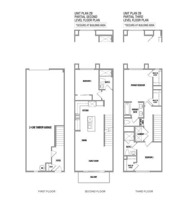
This modern three-story townhouse, ranging from 1,482 to 1,504 square feet, features three bedrooms and three bathrooms. The second floor offers an open-concept kitchen with a sleek island. The second floor also houses a versatile third bedroom and an adjacent bathroom, while the top floor is dedicated to the primary suite with an en-suite bathroom and a second bedroom with easy access to another well-appointed bathroom. A private balcony offers an outdoor space to enjoy fresh air and views, making this townhouse perfect for those seeking a stylish urban lifestyle.
Stay informed with Livabl updates on new community details and available inventory.