hero-image-0

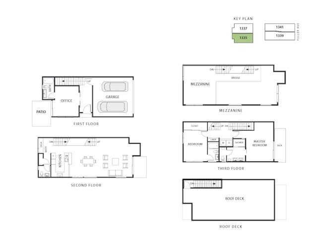
1335 N Fuller Ln

By

Helio

   |   

The Fuller 4

The Fuller 4
Sold
Sold
3
3
1
2,691
1335 N Fuller Ln details
unit-banner-image
unit-banner-image
unit-banner-image
1335 N Fuller Ln is now sold.
Check out available communities below.