









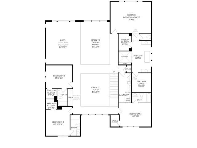
The Zircon is the epitome of luxury with an inviting covered entry that flows into an elegant two-story foyer, presenting views of the stunning great room and two-story casual dining area. The well-designed kitchen is perfect for entertaining, complete with a large center island with breakfast bar and a large walk-in pantry while offering convenient access to a spacious outdoor living space. The serene primary bedroom suite is secluded on the second floor, featuring dual walk-in closets and a spa-like primary bath with dual vanities, a luxe shower with seat, and a private water closet. A generous loft is central to the secondary bedrooms that offer walk-in closets and private full baths. A first-floor bedroom suite with a private bath and walk-in closet can be found off the foyer. Additional features of the Zircon include a versatile flex room off the foyer, a po...
Stay informed with Livabl updates on new community details and available inventory.