11218 West Lyon Lane
Lyon Lane NoHo
Mid - Town North Hollywood, Los Angeles
11224 W Victory Blvd
11210 West Lyon Lane
6510 N Contour Ln
Contour
6509 N Contour Ln
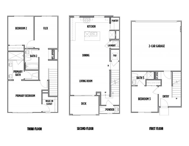
4 new construction homes for sale in The Valley’s most sought-after neighborhoods
If you’re hunting for a newly-built home with ample square footage, two or more bedrooms, and an attached garage for under $1.5 million, there are a handful of infill and small lot developments to consider.