Plan 1
Pickwick Lane
Rancho Adjacent, Burbank
Type A Units - Reverse
Lyon Lane NoHo
Mid - Town North Hollywood, Los Angeles
Type B Units - Reverse
Type A Units
Type B Units
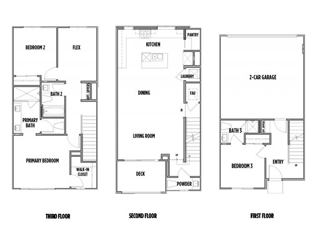
4 new construction homes for sale in The Valley’s most sought-after neighborhoods
If you’re hunting for a newly-built home with ample square footage, two or more bedrooms, and an attached garage for under $1.5 million, there are a handful of infill and small lot developments to consider.