hero-image-0

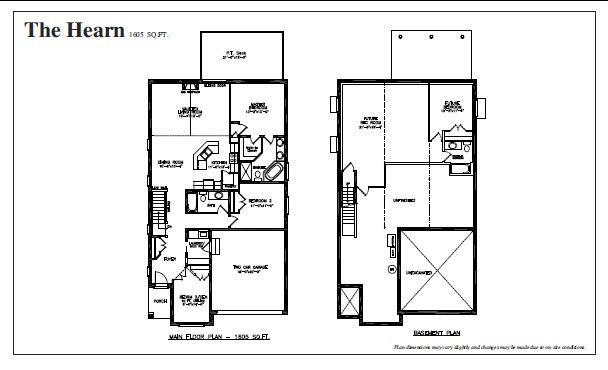
Hearn II Plan

Stonebridge on Sunningdale
Sold
Sold
2
2
1
From 1,548
unit-banner-imageunit-banner-imageunit-banner-image
Hearn II Plan details
Hearn II Plan is now sold.
Check out available communities below.