hero-image-0

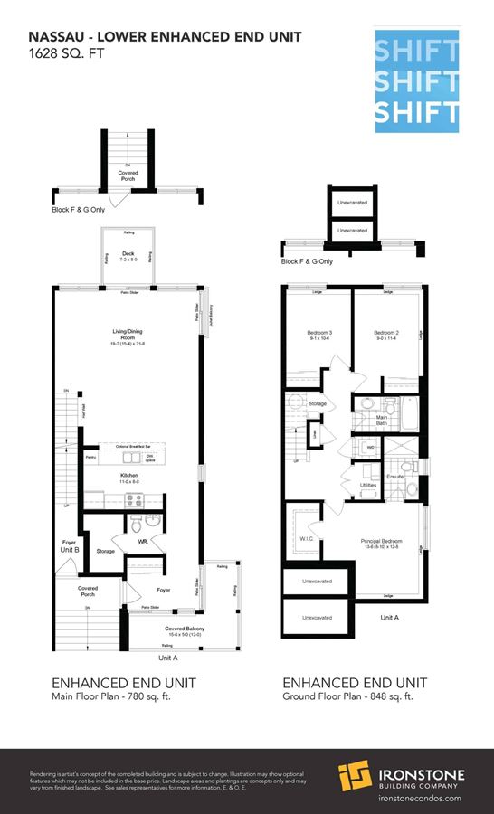
Nassau - Enhanced Unit Plan

Shift Condos
Sold
Sold
3
2
1
From 1,628
unit-banner-imageunit-banner-imageunit-banner-image
Nassau - Enhanced Unit Plan details
Nassau - Enhanced Unit Plan is now sold.
Check out available nearby plans below.