hero-image-0
hero-image-1

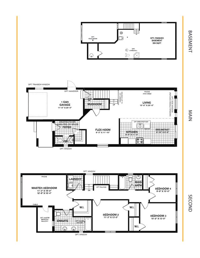
The London Plan

Foxfield Trails
Sold
Sold
4
2
1
From 1,984
unit-banner-imageunit-banner-imageunit-banner-image
The London Plan details
The London Plan is now sold.
Check out available nearby plans below.