hero-image-0
hero-image-1

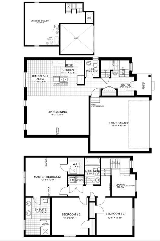
The Bellamy B Plan

Foxfield Trails Phase 6
Sold
Sold
3
2
1
From 1,825
unit-banner-imageunit-banner-imageunit-banner-image
The Bellamy B Plan details
The Bellamy B Plan is now sold.
Check out available nearby plans below.