hero-image-0
hero-image-1

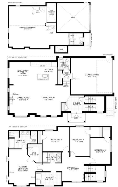
The Belair Plan

Foxfield Trails Phase 6
Sold
Sold
4
2
1
From 2,447
unit-banner-imageunit-banner-imageunit-banner-image
The Belair Plan details
The Belair Plan is now sold.
Check out available nearby plans below.