hero-image-0
hero-image-1
hero-image-2
hero-image-3
hero-image-4
hero-image-5
hero-image-6

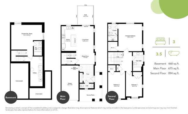
Dalmore Plan

Evans Glen
Sold
Sold
3
3
1
From 1,982
Dalmore Plan details
Dalmore Plan is now sold.
Check out available nearby plans below.

Interested? Receive updates

Stay informed with Livabl updates on new community details and available inventory.