hero-image-0

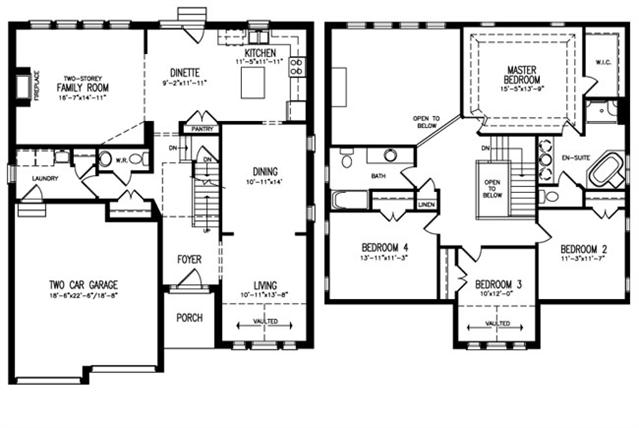
The Wyndham II Plan

Ballymote Woods
Sold
Sold
4
2
1
From 2,752
unit-banner-imageunit-banner-imageunit-banner-image
The Wyndham II Plan details
The Wyndham II Plan is now sold.
Check out available nearby plans below.