hero-image-0

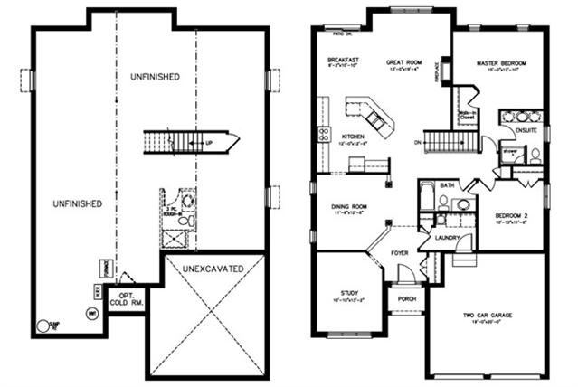
The Bradford Plan

Ballymote Woods
Sold
Sold
2
2
From 1,753
unit-banner-imageunit-banner-imageunit-banner-image
The Bradford Plan details
The Bradford Plan is now sold.
Check out available communities below.