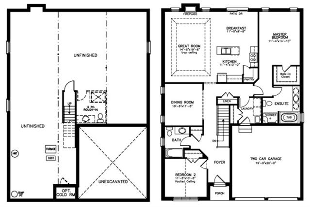
Caverhill - Single-Family Homes
London
Fox Field North
Fox Field, London
Legacy Village
London Junction, London
Sunningdale Court - Phase 1
Sunningdale, London
Gates of Hyde Park II
Fox Hollow, London
Westfields - Phase 2
Hyde Park, London