hero-image-0
hero-image-1

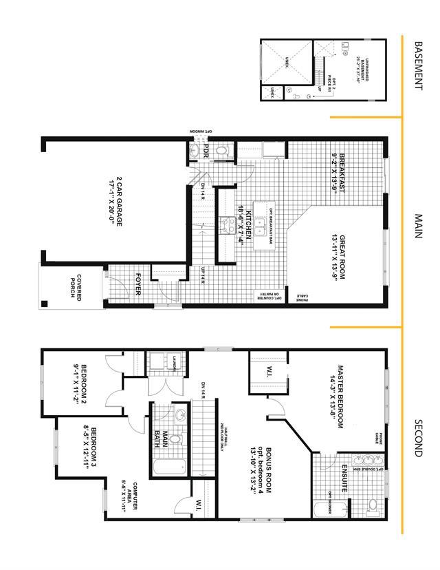
The Kensington Plan

Andover Trails
Sold
Sold
3
2
1
From 1,932
unit-banner-imageunit-banner-imageunit-banner-image
The Kensington Plan details
The Kensington Plan is now sold.
Check out available nearby plans below.