hero-image-0

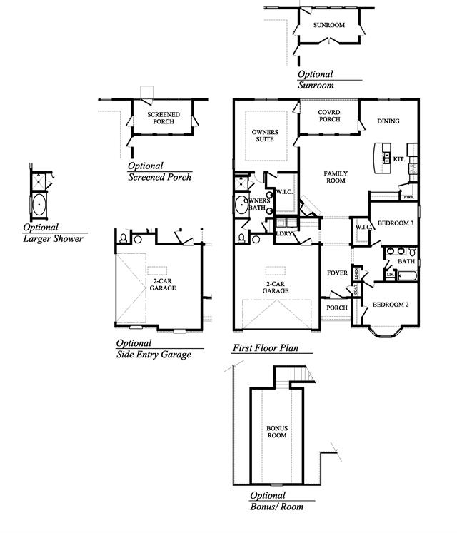
Ventura Plan

By

D.R. Horton

   |   

Heron Bay

Heron Bay
Sold
Sold
3
2
From 1,802
unit-banner-imageunit-banner-imageunit-banner-image
Ventura Plan details
Ventura Plan is now sold.
Check out available nearby plans below.