hero-image-0
hero-image-1

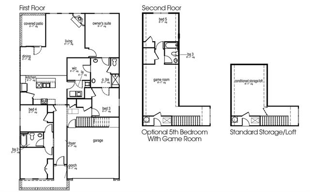
571 Carleton Place

Carleton Cove at Locust Grove
Sold
Sold
4
2
2,368
571 Carleton Place details
unit-banner-image
unit-banner-image
unit-banner-image
571 Carleton Place is now sold.
Check out available nearby homes below.