17362 S Sprucewood Drive
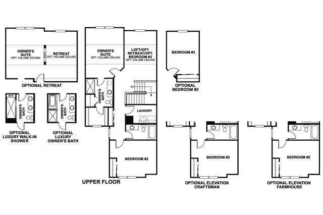
The Townes At Sadie
Lockport
17356 S Sprucewood Drive
15455 W Amelia Circle
15442 W Amelia Circle