



































































Get additional information including price lists and floor plans.
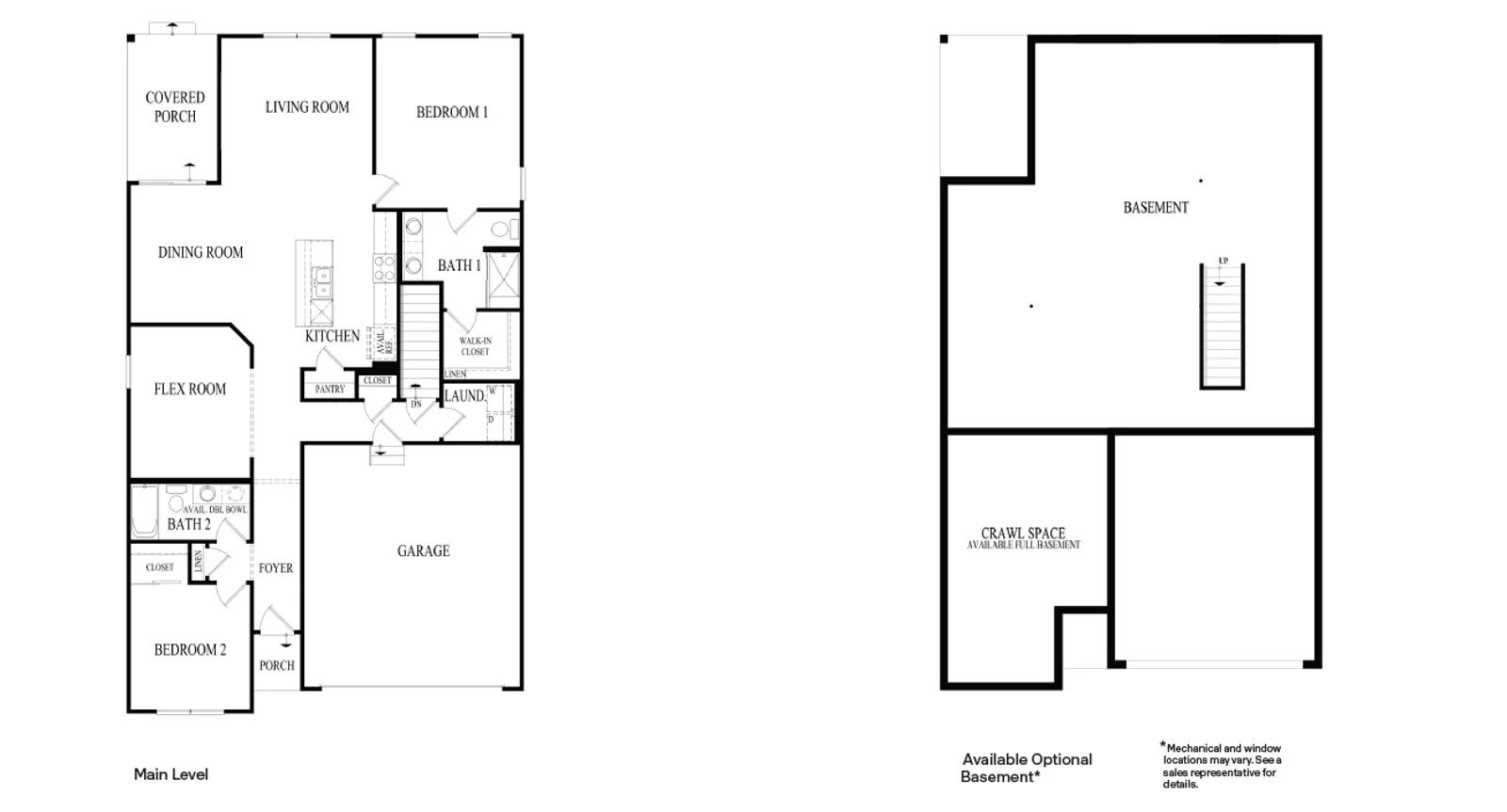
Introducing the Anderson, a ranch single family floor plan featured in our Lago Vista community in Lockport, Illinois. With stone and brick accents, covered back porches, and 2-car garages, the Andersons exteriors make an impact. Enter this 3 bedroom, 2 bathroom home, and you will find 1,505 square feet of single level living space. Walking through the foyer, the secondary bedrooms and full bath are located up front for privacy. Down the hall, the space opens up to your dining room, kitchen, and living area. This is perfect for everyday living and entertaining. The kitchen includes designer cabinets with crown molding, quartz countertops, stainless steel appliances, a large pantry, and an island with an eating bar. The kitchen island overlooks the dining room, so you'll never be too far from the action. The spacious primary bedroom has its own attached bat...
Stay informed with Livabl updates on new community details and available inventory.