

















Get additional information including price lists and floor plans.



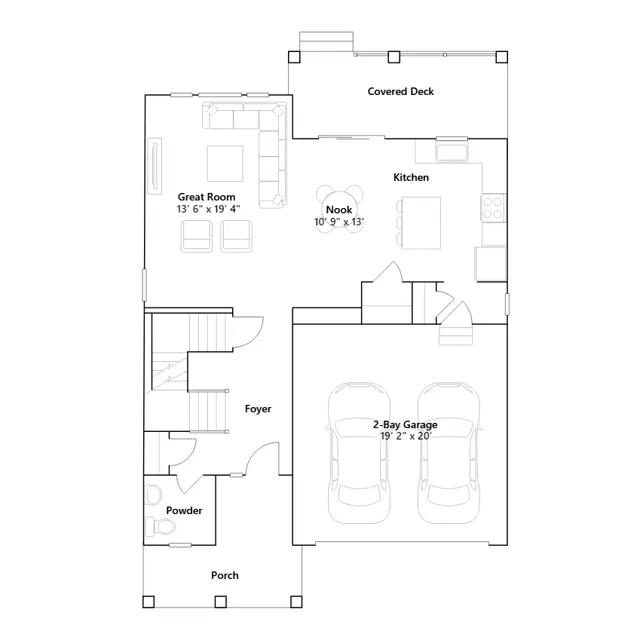
The Great Room, kitchen and dining room are situated among a spacious open floorplan on the first level of this two-story home, with sliding glass doors that lead to the outdoor space. All three bedrooms are situated upstairs, including the luxe owners suite which is comprised of a restful bedroom, en-suite bathroom and walk-in closet.
Stay informed with Livabl updates on new community details and available inventory.