











































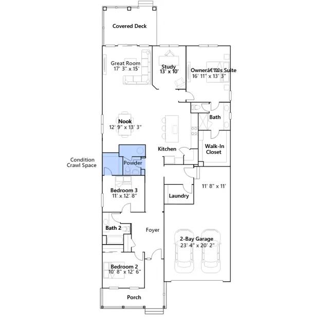
An open floorplan shared between the Great Room, kitchen and nook serves as the heart of this single-level home, providing easy access to the outdoor space through sliding glass doors. The owners suite is located at the back of the home, while two secondary bedrooms are situated off the foyer. A study is ideal for working from home.
Stay informed with Livabl updates on new community details and available inventory.