






































































Get additional information including price lists and floor plans.
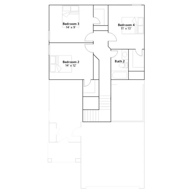
This new two-story home boasts a modern and spacious design. An open-concept floorplan blends the kitchen, living and dining areas on the first floor for seamless entertaining and multitasking. On the second floor, four bedrooms surround a versatile loft, including the lavish owners suite with a full-sized bathroom.
Stay informed with Livabl updates on new community details and available inventory.