



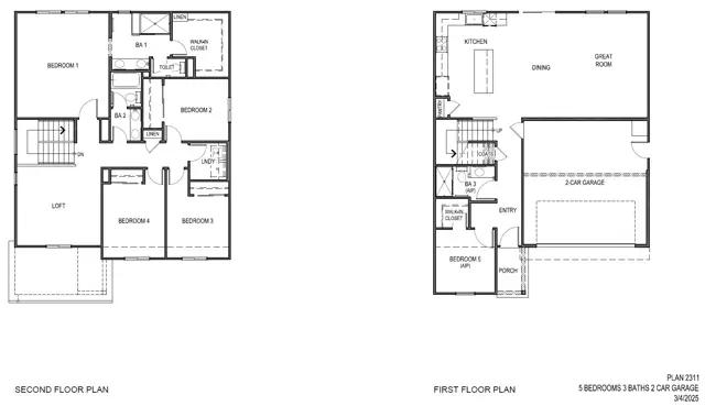
Discover Plan 2311, a spacious 5-bedroom, 3-bathroom home ideal for modern living. This 2-story residence spans 2,311 sq. ft. and features a thoughtful layout with 1 bedroom downstairs and 4 upstairs, including a loft space. Enjoy the convenience of walk-in closets on both levels, along with a suite of Whirlpool appliances in the kitchen, including a freestanding range, microwave/hood combo, and built-in dishwasher. Each bathroom is elegantly appointed with chrome fixtures, elongated toilets, and quartz countertops. The kitchen boasts shaker-style cabinets, quartz countertops, and Deako switches with a USB charging outlet. Throughout the home, you'll find smart features like a Honeywell programmable thermostat and WiFi-enabled garage door opener. Additional highlights include Mohawk carpeting, MSI laminate flooring and concrete tile roofing. This home is ...
Stay informed with Livabl updates on new community details and available inventory.