































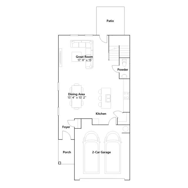
This new two-story home offers a main level with an open-concept layout. A convenient, covered porch by the front door is great for a sitting area or package drop-off. Luxury vinyl plank flooring extends among the Great Room, dining area and kitchen, leading to a back patio for outdoor fun. The kitchen is complete with a spacious island, granite countertops, tile backsplash, and stainless-steel appliances. A powder bathroom can be found just off the kitchen. Upstairs are a versatile loft, two secondary bedrooms and an owners suite with a luxe bathroom and a walk-in closet. Secondary bathrooms are complete with a tub-shower combo and ceramic tile flooring. Completing the home is a two-car garage. Enjoy onsite amenities, including a saltwater pool with a cabana and a tot lot. The community is conveniently located near NC-55, US-401, and I-40, providing easy access...
Stay informed with Livabl updates on new community details and available inventory.