


































































































































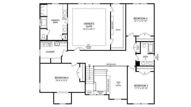
Discover The Eisenhower Luxury Living in Our Presidential Collection The Eisenhower floor plan is designed to impress with over 5,100 square feet of stunning, modern living space. Step inside to an expansive first floor featuring soaring 20-foot ceilings in the foyer, enhanced by elegant built-ins and exquisite crown molding and trim options. At the heart of the home is a gourmet deluxe kitchen with a large islandperfect for meal prep and entertaining. You can also add a bright, spacious sunroom to bring even more natural light and comfort to your living space. Upstairs, the luxurious owners suite boasts a stylish tray ceiling, an award-winning spa bath, and a spacious California closet designed for optimal organization and style. Explore The Eisenhower todayan exceptional home where luxury meets thoughtful design.
Stay informed with Livabl updates on new community details and available inventory.