









Images coming soon
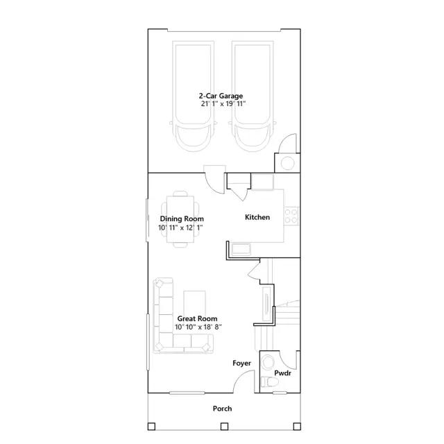
Designed for modern lifestyles, the first floor of this new two-story home is host to a versatile open-concept layout consisting of the kitchen, living and dining areas. Three bedrooms are located on the second floor, including the lavish owners suite with a spa-inspired bathroom and generous walk-in closet. A two-bay garage provides convenient access and additional storage space.
Stay informed with Livabl updates on new community details and available inventory.