hero-image-0
hero-image-1
hero-image-2
hero-image-3
hero-image-4
hero-image-5
hero-image-6

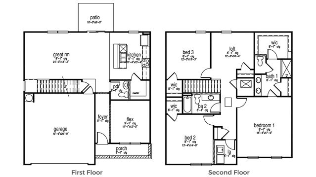
Penwell Carolina Plan

By

D.R. Horton

   |   

Springhill Lake

Springhill Lake
Sold
Sold
2
4
2
1
From 2,175
Penwell Carolina Plan details
Penwell Carolina Plan is now sold.
Check out available nearby plans below.